O OBJEKTU
Slobodno stojeci objekat, sa dvoristem ogradjen sa sve cetiri strane.
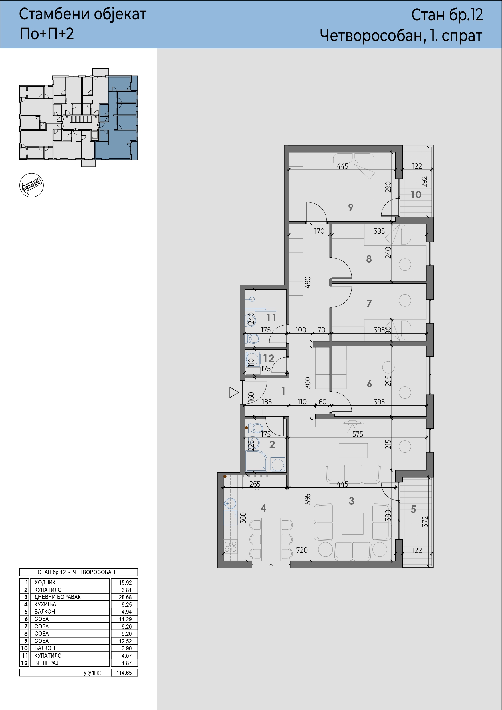
Stambeni objekat se sastoji od suturena,prizemlja i dva sprata.
Nase arhitekte su se maksimalno potrudile kako bi napravile stanove sa maksimalno iskoriscenim prostorom.
Stanovi ce biti kvadrature od 28 m2 do 87m2, takodje ce u sklopu imati i 20 natkrivenih spoljnih parking mesta.
MATERIJALI
Zgrada je savremeno projektovana sa najkvalitetnijom završnom obradom i materijalima.
Kupatila u uvoznoj granitnoj keramici velikih formata, ugradni lavaboi sa ormaricima, staklene tus kabine i kvalitene sanitarije deo su standardne opreme koju pruzamo.
Zgrada je projektovana tako da podrzava najvise standarde energetske efikasnosti.
Termo izolacija od 10 cm ce znatno smanjiti troskove grejanja.
Fasada u granitu
Veliki otvori kakvi su na nasim objektima pruzice maksimlno svetao dom .Petokomorna stolarija Nemackog proizvodjaca sa tri sloja stakala takozvani ClimaGuard 4 godisnja doba stakla. ClimaGuard Solar je ravno staklo sa transparentnim i izrazito tankim filmom na površini. Zahvaljujući tome, osigurava visoko propuštanje svetlosti (66%), odličnu toplotnu izolaciju (Ug=1.1 W/m²K) i zaštitu od sunčeve energije (propušta samo 42% sunčeve energije). Sve to samo u jednom premazu! ClimaGuard® Solar staklo čija je glavna svrha izuzetna toplotna izolacija, u poređenju sa tradicionalnim izolacionim staklom, omogućava uštedu polovine troškova grejanja u hladnim danima. U prosečnom domaćinstvu to može biti i do nekoliko stotina evra godišnje. To staklo ne samo da vodi računa o vašim novčanicama, nego i o Vašoj okolini.
Projektovano grejanje je podno sa ugradnim termo kotlovima.
Vrata sigurnosna sa ugradnjenim ogledalima sa unutrasnje strane, opis mozete da pogledate na linku http://www.block-lock-door.rs/proizvodi/sigurnosna-vrata-model-bld1.php
Ulaskom u zgradu stiče se utisak ulaska u neki luksuzni hotel ili kuću,cilj nam je da svojim kupcima pružimo maksimalan osećaj ugodnosti.